 
			 
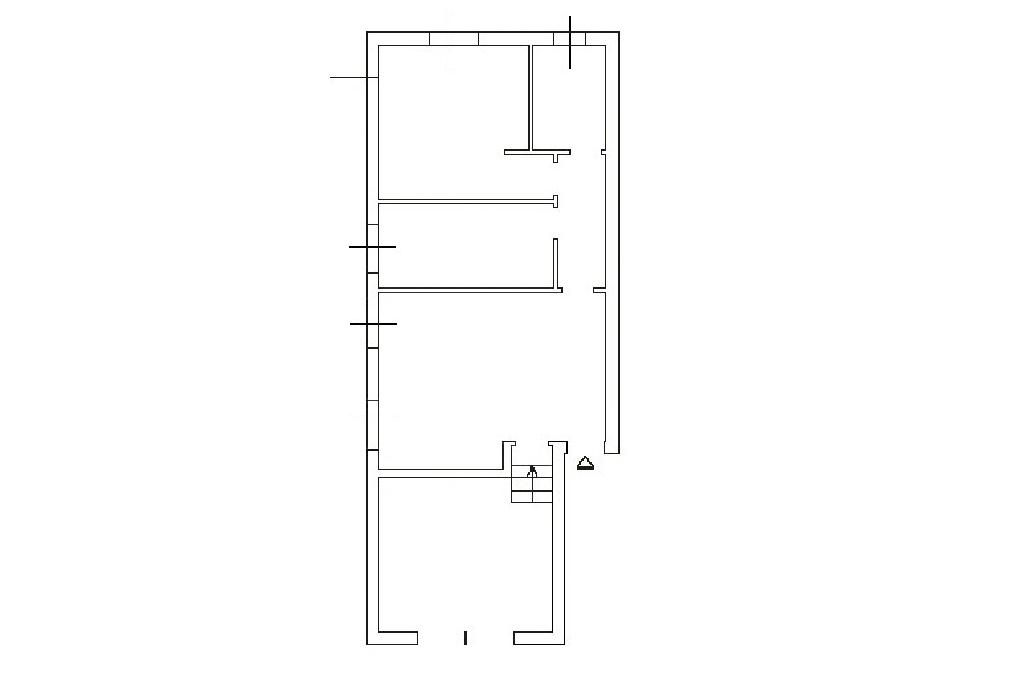
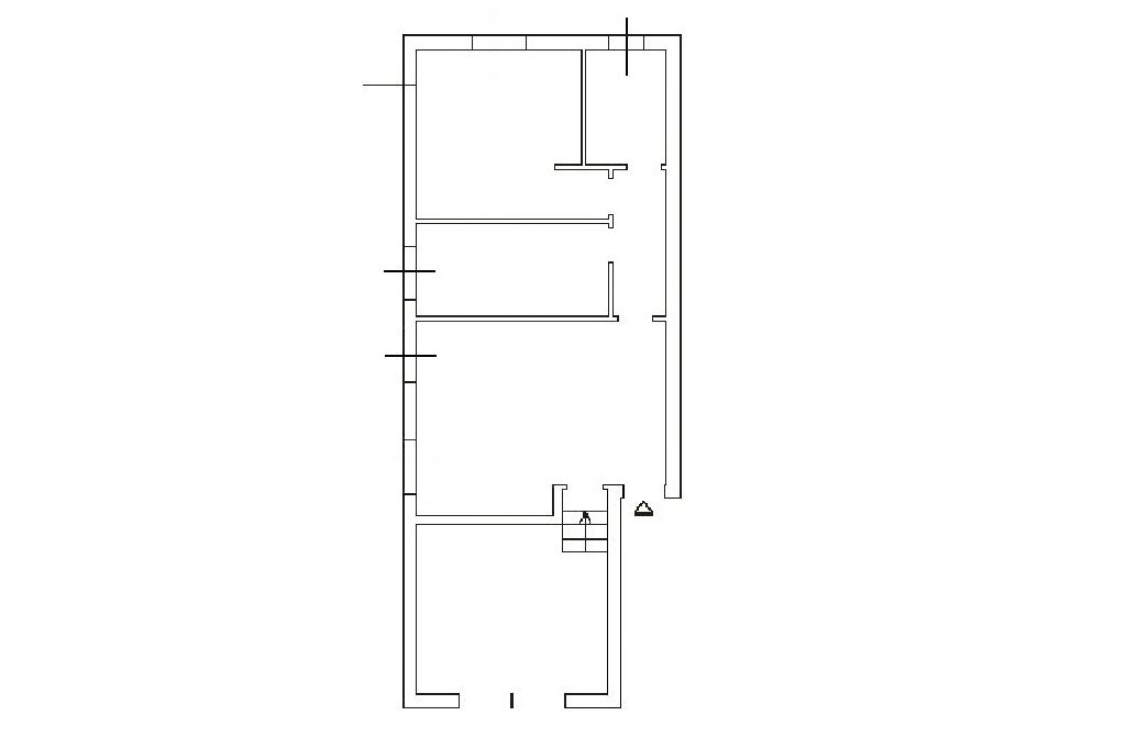
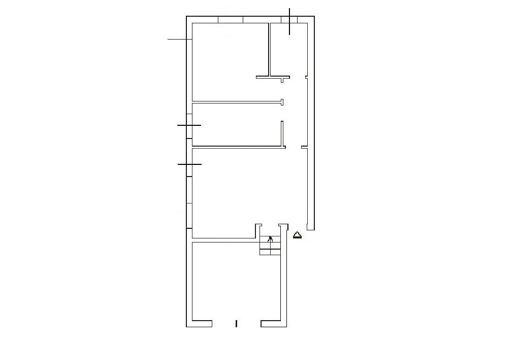
				LODI: in zona San Fereolo, comoda per raggiungere la stazione ferroviaria e tutti i servizi principali offerti dalla città, proponiamo in vendita spazioso trilocale posto al piano terra, con spese condominiali minime e cortiletto di proprietà esclusiva. L'immobile è stato completamente ristrutturato con finiture che strizzano l'occhio al gusto moderno, sia in termini di stile che in termini di funzionalità. L'ingresso si apre su uno spazioso soggiorno con cucina a vista: il bianco dei dettagli, l'elegante laminato del pavimento dal colore tenue che ritroveremo in tutti gli ambienti della casa ed i faretti studiati per rendere l'ambiente ancora più luminoso, creano immediatamente un'atmosfera accogliente. Tramite un disimpegno si raggiunge la zona notte, la quale presenta un'ampia camera da letto matrimoniale ed una seconda camera singola. A completare questa parte della casa un bagno finestrato con doccia, rifinito con piastrelle dal motivo marmoreo e termoarredo. L'appartamento è dotato di infissi in PVC con vetro doppio, tapparelle motorizzate, riscaldamento autonomo, predisposizione dell'impianto di climatizzazione e porta blindata. A corredo, un cortiletto ed un box di proprietà esclusiva con accesso diretto all'abitazione. Libero da subito. Vi diamo il benvenuto nella vostra nuova casa!
Offriamo inoltre il servizio di valutazione gratuita e non impegnativa per la vendita del tuo immobile. Ogni agenzia ha un proprio titolare ed è autonoma - Le presenti informazioni, descrizioni e immagini non costituiscono elemento contrattuale.
Ti interessa visionare l'immobile?